Description
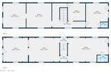
Step into the charm of historic Camden with this two-story commercial building, originally built in 1850 and offering 1,837 square feet of versatile space. Featuring two restrooms and 63 feet of prime road frontage, the property is ideally positioned in the heart of Camden with excellent visibility. Zoned Village Commercial, it supports a wide range of uses, from retail to office, boutique, or service-based business. Previously utilized as retail, the building blends historic character with modern opportunity, making it a standout investment for those looking to establish a presence on Camden's main corridor. Owner financing is available for qualifying buyers with a 20% down payment.
-
0BEDS
-
0.19ACRES
-
0BATHS
-
01/2 BATHS
-
1,837SQFT
-
$82$/SQFT
School Ratings & Info
Description
Step into the charm of historic Camden with this two-story commercial building, originally built in 1850 and offering 1,837 square feet of versatile space. Featuring two restrooms and 63 feet of prime road frontage, the property is ideally positioned in the heart of Camden with excellent visibility. Zoned Village Commercial, it supports a wide range of uses, from retail to office, boutique, or service-based business. Previously utilized as retail, the building blends historic character with modern opportunity, making it a standout investment for those looking to establish a presence on Camden's main corridor. Owner financing is available for qualifying buyers with a 20% down payment.
The data relating to real estate on this web site comes in part from the Internet Data Exchange program of Hive MLS LLC, and is updated as of 2026-03-16T22:35:10.987. All information is deemed reliable but not guaranteed and should be independently verified. All properties are subject to prior sale, change, or withdrawal. Neither listing broker(s) nor Atlantic Sotheby's International Realty shall be responsible for any typographical errors, misinformation, or misprints, and shall be held totally harmless from any damages arising from reliance upon these data. © 2026 Hive MLS LLC