Description
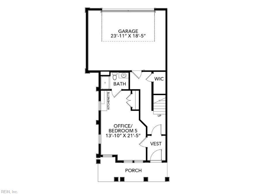
Construction is about to begin on this grouping of 5 unique townhomes in East Beach by Kirbor Homes. This wide open living space has a beautiful South facing curved bay window in the wide open living area which is the entire 2nd level. The floorplan offers 1 bedroom on the first floor and 3 on the 3rd level including the primary. A 5th bedroom/flex space are on the top floor in addition to a large roof top deck that will look down the street towards the bay and beach. Enjoy living in Norfolk's beachfront neighborhood where your boat, beach, and restaurants are all nearby.
-
5BEDS
-
0.05ACRES
-
3BATHS
-
11/2 BATHS
-
3,187SQFT
-
$238$/SQFT
School Information
Description
Construction is about to begin on this grouping of 5 unique townhomes in East Beach by Kirbor Homes. This wide open living space has a beautiful South facing curved bay window in the wide open living area which is the entire 2nd level. The floorplan offers 1 bedroom on the first floor and 3 on the 3rd level including the primary. A 5th bedroom/flex space are on the top floor in addition to a large roof top deck that will look down the street towards the bay and beach. Enjoy living in Norfolk's beachfront neighborhood where your boat, beach, and restaurants are all nearby.

